Webbplatsen använder antigen IE11 eller teknik som troligen inte stöds i din webbläsare. Vissa saker kan se konstiga ut eller inte fungera. Vi rekommenderar att du byter till en modern webbläsare istället.

Skip to main content

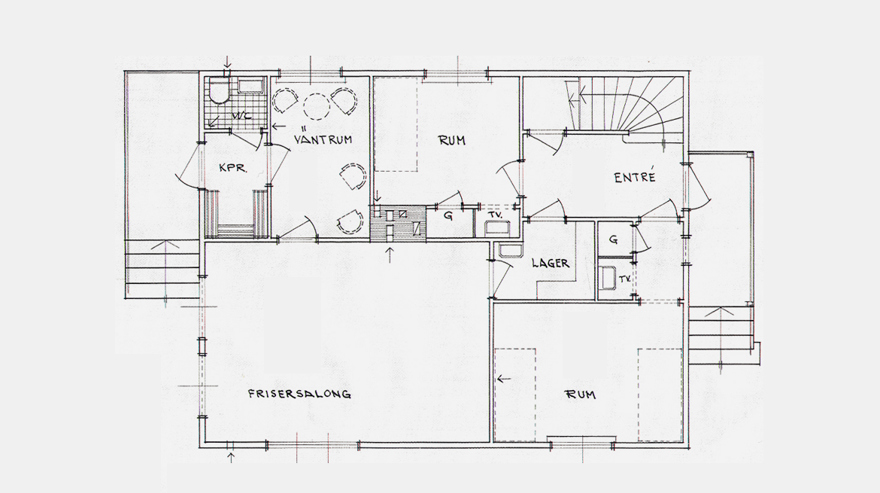
Bottenplan

bottenplan

Talluddens bottenplan har lokal för en frisersalong med väntrum och förråd.

I denna hustyp är det vanligt att bottenplan och övre plan innehåller en varsin lägenhet. Här är dock planlösningen något annorlunda. På bottenplan finns en frisersalong med väntrum och förråd. I anslutning till hallen i den östra delen finns två sovrum som hör till den övre våningen.

Trapphall

Den här entrén används både av de boende i lägenheten på övervåningen och av de som bor i de två rummen på entréplan. I entrén och trappan upp till andra våning sitter hårda masonitskivor på väggar och i tak. På ytterväggens insida sitter dessutom porösa masonitskivor, eftersom dessa fungerar som extra isolering. Väggar, tak och snickerier är här laserade och fernissade två gånger, den sista gången med matt fernissa. Väggarna har laserats med en varmgul färg blandad av obränd terra och kadmium. Först har färgen strukits upp på väggen, därefter har en hopknycklad trasa använts för att få till mönstret på väggen.

Här har man valt att sätta täcklister över fogarna mellan masonitskivorna, vilket också ger en viss mönsterverkan på väggen. Lister och tak är vita. Dörrarna är släta och fanerade med gabon. På golvet i entrén ligger sandfärgade keramiska plattor.

Golvet i trapphallens övervåning är ett fernissat brädgolv med måtten 1 ¼ tum × 3 ½ tum - 5 ½ tum i sorterad eller osorterad gran. Trappan har vagnstycken och plansteg av 2 tums plank och sättstegen är entumsbrädor. Trappan är fernissad. Handledaren är betsad och klarlackad. Björk användes ofta till handledare. 

handledare

Betsad och klarlackad handledare och fernissad trappa. 

Sovrum 1

Det här rummet kan ha fungerat som sovrum för en inneboende. Här finns en platsbyggd garderob och en liten nisch där det då troligen har funnits ett handfat.

På väggar och i tak sitter porösa masonitskivor, som är tapetserade på väggarna och målade vita med limfärg i taket. Dörrarna är släta och fanerade med gabon.

Golvet är ett fernissat trägolv, med brädor i storleken 1 ¼ tum × 3 ½ tum - 5 ½ tum.

Sovrum 2

Det här rummet kan ha använts som sovrum och hyrts ut till någon inneboende. Man kommer in i rummet via en hall. Där finns en garderob och en liten nisch, där det förmodligen har funnits ett handfat.

I hallen sitter hårda masonitskivor på väggar och i tak, på ytterväggens insida sitter dessutom porösa skivor under de hårda för extra isolering. Väggarna är målade vita med linoljefärg och taket är målat vitt med limfärg. Även listerna är målade vita med linoljefärg. Dörrarna är släta och fanerade med gabon. 

Rummets väggar är klädda med porösa masonitskivor, som har tapetserats med en grå mönstrad tapet. Även i taket sitter porösa masonitskivor, dessa har målats vita med limfärg. Lister runt dörrar, fönster, golv och tak är släta och vitmålade med linoljefärg.

Golvet är ett fernissat trägolv, med brädor i storleken 1 ¼ tum × 3 ½ tum - 5 ½ tum.

bambu

Tapet med mönster av bambublad och bambustammar.

Frisersalong

På bottenvåningen i den här tvåplansvillan finns en frisersalong. Här är stort och ljust med fönster i två väderstreck. Väggarna är täckta med masonitskivor, som på nedre delen av väggen har täcklister över fogarna. Där är skivorna brunbetsade.

Den övre delen av väggen är målad med linoljefärg i en sandfärgad kulör. På golvet ligger en linoleummatta på ett underlag av entums slätspont.

I det lilla rummet bakom frisersalongen finns ett utrymme för lager och förvaring. Här sitter hårda masonitskivor på väggar och i tak. Dessa är vitmålade, på väggarna med linoljefärg och i taket med limfärg. Dörrarna är släta och fanerade. På golvet ligger ett fernissat brädgolv, med brädor i storleken 1 ¼ tum × 3 ½ tum - 5 ½ tum.

linoleummattor

Linoleummattor i olika färger.

Väntrum till frisersalongen

Det här rummet fungerar som väntrum för besökare till frisersalongen. På väggar och i tak sitter porösa masonitskivor, dessa är målade vita med limfärg i taket och med linoljefärg på väggarna. Dörrarna är släta och fanerade med gabon. På golvet ligger en linoleummatta på ett underlag av entums slätspont.

Utanför väntrummet finns en entréhall för kunderna till salongen. Här sitter hårda masonitskivor på väggar och i tak, på ytterväggens insida sitter dessutom porösa masonitskivor, eftersom dessa fungerar som extra isolering.

Väggar, tak och snickerier är här laserade och fernissade två gånger, den sista gången med matt fernissa. Väggarna har laserats med en varmgul färg blandad av obränd terra och kadmium. Först har färgen strukits upp på väggen, därefter har en hopknycklad trasa använts för att få till mönstret på väggen. Här har man valt att sätta täcklister över fogarna mellan masonitskivorna, vilket också ger en viss mönsterverkan på väggen.

Lister och tak är vita. Dörrarna är släta och fanerade med gabon. På golvet i entrén ligger sandfärgade keramiska plattor.


Senast uppdaterad: 2017-12-06 15:39