Webbplatsen använder antigen IE11 eller teknik som troligen inte stöds i din webbläsare. Vissa saker kan se konstiga ut eller inte fungera. Vi rekommenderar att du byter till en modern webbläsare istället.

Skip to main content

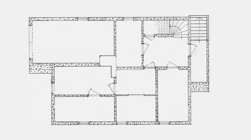
Husets plan

Planritning över övre våningen i Bergklinten

Hur har rumsfördelningen sett ut i våra småhus? När kom den inredda källaren och vinden? Läs mer här!

Det lilla torpet, enkelstugan, från 1840-talet

Enkelstugan är en av de mest ålderdomliga stugtyperna. Troligen har den timrade enkelstugan med stuga, förstuga och kammare utvecklats under medeltiden. Utgrävningar i Skara och Lödöse antyder att enkelstugan kan ha funnits redan under 1100-1200-talet. Idag hittar vi tidiga exempel på planen i enstaka senmedeltida borganläggningar såsom Torpa stenhus i Kind.

Enkelstugan har troligen varit vanlig som bostadshus även på medelstora gårdar men under 1800-talet förekommer den främst på småbruk, torpställen och är mycket vanlig längs Bohuskusten. I början av 1800-talet börjar man bygga enkelstugor i två hela våningar. 

Enkelstugan i exempelhuset Solåsen har en bostadsyta på ungefär 40-50 kvadratmeter, uppdelad på farstu, kammare och stuga. Farstun var oftast ouppvärmd och fungerade med sina många dörrar som en luftsluss till bostadsrummen. 

Solåsens plan

Läs mer om Solåsen från 1940 här

I köket finns en eldstad där man lagar mat över öppen härd. Eldstaden fungerar på så sätt också som ljuskälla, i de annars ganska mörka stugorna. 

Torpets andra rum kallas stugan och detta fungerar som sovrum och arbetsrum i ett. I stugan står en rörspis, även kallad fattigmans kakelugn. En rörspis är en eldstad av tegel, med liknande funktion som en kakelugn, murad med lerbruk och därefter putsad istället för att beläggas med kakel.

Klicka här för att läsa mer om spisar och ugnar

Tänk på att

Idag är det modernt med ljusa, luftiga rum, varför man kanske vill ha öppet upp i nock i stugan. Dock ska man vara medveten om riskerna som det medför. Om man isolerar upp i nock krävs det att konstruktionen är heltät, vilket man uppnår med ett plastskikt. Annars bildas kondens när varm luft stiger upp i nock och möter den kalla luften, vilket på sikt skapar fuktproblem. Det är viktigt att poängtera att en sådan åtgärd kräver stor kunskap om gamla hus, så att fuktansamlingen vid nocken inte orsakar skador.

Huset med salsplan från 1890

I mitten av 1800-talet började böndernas bostäder successivt förändras. Istället för de traditionella enkelradhusen, enkelstugor, parstugor och framkammarstugor, började husen byggas med dubbla rumsfiler. Ett samlingsnamn för dessa är dubbelradhusen.

Dubbelradhusen har förebilder i herrgårdarnas salsplan. Typiskt för dessa hus är sex- eller femdelade planer. De många rummen är tecken på ändrade boendemönster med separat kök, sovkamrar och särskilt finrum.

Vårt exempelhus Hemvik från 1890 har en sexdelad plan med en stor sal i mitten. Likt torpstugan ovan har Hemvik en farstu, eller hall, som leder in i olika delar av huset.

Läs mer om Hemvik här

Bottenvåning

Man kommer in i hallen genom vardagsentrén på husets gavel. En pardörr med ett överljus leder in till det lilla rummet. I hallen finns en trappa bakom en dörr, som leder upp till övervåningen. Här är dörrar till ett skafferi och en dörr som leder in till köket och en som leder till rum 1. Hallen är ouppvärmd. 

Hemvik plan över bottenvåningen

I köket till finns ingen skåpsinredning, men längs ena väggen finns en emaljerad ho för utslagsvatten. Här finns också en vedspis och en bakugn. Från köket leder en dörr in till salen och en till hallen.

Den stora salen ligger centralt placerad i huset. Den fungerar som ett finrum och används inte till vardags. I salen står en kakelugn som är äldre än huset, vilket betyder att den har flyttats hit från ett annat hus. 

Från salen når man köket, rum 3 och verandan. Mellan salen och verandan sitter en pardörr. Den stora verandan inrymmer glasveranda och möblerad hall och fungerar som finingång. Verandan har ingen eldstad, utan har varit kall. Från verandan når man salen, rum 1 och rum 2. En pardörr leder ut till trappan på framsidan av huset. Pardörrarna har kompletterats med innerdörrar för att hindra värmeförluster.

Övervåningen

Plan över övervåningen i Hemvik

Exempelhuset Hemvik ligger havsnära och rumsindelningen på övre plan är därför anpassad för uthyrning till sommargäster. Den smala trappan leder upp till en hall med ingångar till de olika rummen på övervåningen. 

En kakelugn står placerad mellan trappan och öppningen till rum 1. Rummet har platsbyggda sidogarderober.

Övervåningen med ett av rummen till vänster och trappan till höger

Rummen på övervåningen hyrs ut till sommargäster. De flesta av rummen har sidogarderober för att tillgodose hyresgästernas förvaringsbehov. I gavlarna bildar innertaket ett så kallat tredingstak och längs långsidorna snedtak, förutom i rummet ovanför verandan som har tak upp i nock. 

Den mindre stugan från 1900

Exempelhuset Helgeröd är ett hus på dubbel bredd, ett så kallat Västsvenskt dubbelhus eller dubbelradhus, vilket betyder att det har två rumsfiler.

Just detta hus tillhör en typ av dubbelradhus som kallas ett västsvenskt dubbelhus. Det har fyra rum grupperade runt en central murstock och är mycket vanlig i norra Halland, Västergötland, Dalsland och Bohuslän.

Helgeröd är från 1900 är ett väl bibehållet exempel med mycket få ändringar sedan byggtiden.

Läs mer om Helgeröd här

Från glasverandan kommer man in i en liten hall som leder in till ett större rum till vänster och kammaren till höger från vilken man kommer upp till övervåningen. 

Helgeröds bottenvåning

Köket i det bortre högra hörnet har inte genomgått några större förändringar sedan byggtiden. I köket finns ett murat spiskomplex med bakugn och järnspis. Köksinredningen är mycket enkel. Vatten och avlopp är inte indraget och någon diskbänk eller utslagsho finns inte. I ena hörnet står ett högt skänkskåp och i andra änden en skänk. Vid bakugnen finns en väggfast vedlår. 

Salen eller finrummet användes normalt endast vid särskilda tillfällen. Det var vanligen inte uppvärmt. Golvet är lagt med en frisbräda runt om rummets kanter. Salen har till skillnad från de övriga rummen fernissat golv, vilket ger en mahognybrun färg. Rummet värms av en putsad rörspis med järnluckor. Rörspisen är uppmurad som en kakelugn men har en kalkputsad yta istället för kakel. Spisen kan vara målad med limfärg eller kalkfärg (slammad). 

Övervåningen/vinden

Vinden är oinredd bortsett från en timrad pigkammare på västgaveln och sidoskrubbar för förvaring på sidorna av denna. Övriga delen av vinden är öppen upp i nock och har använts för förvaring, bland annat av mat, vilket är typiskt för Västsverige. 

Helgeröds vindsvåning

I murstocken på vinden går de separata kanalerna till de olika eldstäderna ihop till en centralpipa en bit ovanför golvhöjd. 

1920-talsvillan

På den här tiden hade större villor jungfrukammare och serveringsgång. Mindre villor med en mer kvadratisk plan som vårt exempelhus Bergklinten hade däremot sällan sådana utrymmen. Den här typen av villa kunde många gånger vara uppdelad i två lägenheter, så att ena våningsplanet kunde fungera som bostad åt en äldre generation. I den här villan finns två lägenheter med vardera två rum och kök.

Exempelhuset Bergklinten från 1928 har en korsdelad plan med en centralt placerad murstock. Nu har även den inredda källarvåningen blivit vanlig.

Läs mer om Bergklinten här

Plan över Bergklintens bottenvåning

Bottenvåningen

Vardagsentrén ligger på gaveln och leder in till förstugan som fungerar som ett vindfårng. Här är en trappa som leder upp till övervåningen och en dörr till tamburen. Tamburen har en central placering i huset med dörrar som leder till kök, vardagsrum, entré, förstuga med trappa, WC och garderob. I tamburen finns även plats för upphängning av kläder.

Köket nås endast från tamburen. Utrymmen för förvaring och beredning var på 1920-talet inte så väl tilltagna som idag. I det här köket finns ett högt platsbyggt skåp, som kan ha fungerat som städskåp med plats för sopborstar med mera. Det finns också skänkskåp, undre och övre skåp med ett öppet utrymme mellan, som ger plats för förvaring av porslin, glas och andra bruksföremål. I överskåpen finns hyllor och i underskåpen utdragbara lådor. Diskbänken är av marmor. Tidigare var diskbänkarna ofta av trä, beklädda med zinkplåt, alternativt kopparplåt om det skulle vara riktigt fint.

För förvaring av mat finns ett skafferi med tilluftsventil. Hyllorna är belagda med vaxduk, linoleum- eller korkmatta. Dessutom finns både rotfruktskällare och hushållskällare i källarvåningen. I köket finns en järnspis. 

Vardagsrummet, som är det största rummet i huset, nås från tamburen. I rummet finns fönster åt två väderstreck. Här finns också dörrar till sovrummet och en inbyggd garderob. 

Sovrummet är rejält tilltaget och har fönster i två väderstreck. Eftersom det bara finns ett sovrum på nedre våningen var det förstås tänkt att det skulle delas av flera. I anslutning till rummet finns en inbyggd liten garderob. Sovrummet nås från vardagsrummet. 

Intill trappan, i anslutning till hallen, ligger ett litet rum med WC. Dörren här är smalare än de övriga dörrarna i huset. Här finns en toalett – men ingenting mer.

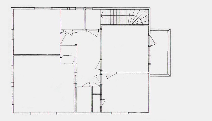
Övervåningen

Bergklinten är uppdelad i två lägenheter som ligger på varsitt våningsplan. Rummen på övervåningen är något mindre än de på bottenplan på grund av takfallet. Annars är de i princip likadana.

Bergklintens övervåning

Mellan rummen och snedtaket finns sidogarderober som sträcker sig längs hela långsidan på huset. De fungerar som extraförvaring och är också ett sätt att utnyttja det annars svårmöblerade utrymmet som uppstår på grund av takfallet. 

Från tamburen på övre våningen kommer man ut på balkongen. 

Sovrummet är även på övervåningen rejält tilltaget och har fönster i två väderstreck. I anslutning till rummet finns en inbyggd liten garderob. Sovrummet nås från vardagsrummet. 

Intill trappan, i anslutning till hallen, ligger ett litet WC. 

Källaren

Källaren inrymmer bland annat tvättstuga, ved- och kolkällare och rotfruktskällare. All inredning samt eventuella väggar av trä har strukits med kokt linolja och sedan fernissats.

Bergklinten källarvåning

I tvättstugan finns en fristående eller inmurad brygghuspanna, som användes när man tvättade. Tvätten sköljdes sedan i ett sköljkar av cement och i en del hem fanns också vridmaskiner, som kunde hjälpa till att torka tvätten något innan den hängdes upp. Tvätten hängdes ute, på en torkvind, eller på någon annan torkplats inomhus. I tvättstugan finns bänkar och trallar av trä. 

I anslutning till pannan finns ett särskilt utrymme för förvaring av bränsle. Ofta eldades pannan med koks. 

I hushållskällaren finns bord, hyllor och skåp. Skåpen har dörrar med metalltrådsnät. 

I rotfruktkällaren finns förvaringsutrymmen i form av hyllor och binge för potatis och rotfrukter. Blomkål och vitkål hängs upp i snören vid stänger av 1¼ tums rundstav. 

Funkishusets plan

Typen av villa är vanlig i hela Sverige och producerades av en rad olika hustillverkare. Husets utseende speglas i efterkrigtidens framtidstro. Nya material och metoder kom snabbt i produktion hos husfabrikanterna. Oavsett fabrikat på typhus känner man igen sig i materialval och tekniska lösningar, även om variationer förekommer.

Vårt exempelhus Talludden från 1949 får illustrera det populära funkishuset. Lägenheterna innehåller vardagsrum, två sovrum, kök med matplats, hall samt badrum. Till detta hör en källare med garage, pannrum, tvättstuga, torkrum, matkällare och svale.

Läs mer om Talludden här

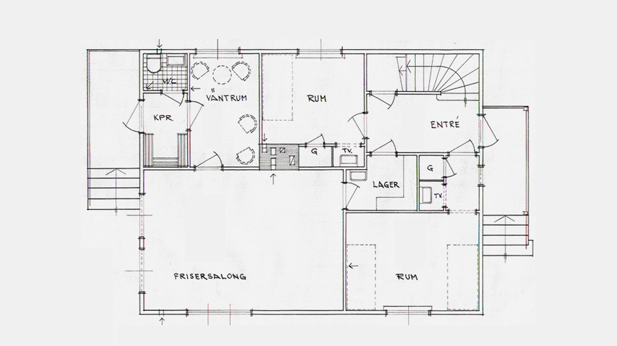
I denna hustyp är det vanligt att bottenplan och övre plan innehåller en varsin lägenhet. Här är dock planlösningen något annorlunda. På bottenplan finns en frisersalong med väntrum och förråd. I anslutning till hallen i den östra delen finns två sovrum som hör till den övre våningen.

Talludden bottenplan

Huset har två entréer, den ena går till frisörsalongen och den andra till bostadsrummen på botten- och övre plan. Den senare entrén används både av de boende i lägenheten på övervåningen och av de som bor i de två rummen på entréplan.

De båda rummen på bottenvåningen kan ha använts som sovrum och hyrts ut till någon inneboende. Man kommer in i rummet via en hall. Där finns en garderob och en liten nisch, där det förmodligen har funnits ett handfat.

Frisersalongen har ett stort och ljust rum med fönster i två väderstreck. I det lilla rummet bakom frisersalongen finns ett utrymme för lager och förvaring. Innanför entren är en farstu med toalett och ett väntrum för besökare till frisersalongen.

Övervåningen

Övre plan inrymmer en lägenhet med tre rum och kök. Man når lägenheten via trapphallen i första plan. En centralt placerad hall fungerar som förbindelselänk mellan rummen.

Talludden övre plan

När man kommer in i lägenheten möts man av en stor hall som ligger mitt i huset. Härifrån leder dörrar till kök, vardagsrum, badrum, två sovrum och klädkammare.

Vardagsrummet är lägenhetens största rum, med fönster i två väderstreck. I rummet finns även en öppen spis med rött tegel kring och inuti spisen. Framför spisen ligger likadana tegelstenar som spisen är murad av för att skydda parketten.

Köket är välplanerat med en tydlig fokusering på att det skall finnas arbetsplatser och förvaringsutrymmen. Det har släta lättstädade ytor. Köksskåpen har en fernissad trästomme och når ända upp till taket. Under överskåpen finns en rad med specerifack i glas avsedda för kryddor mm. Det finns även ett skafferi med friskluftsventil och ett litet kylskåp. Köksbänken är av rostfritt stål med två hoar och övriga bänkar är av teak. 

De båda sovrummen skiljer sig lite åt förutom att det ena har en dörr som leder ut till balkongen. Sovrummen har stora fönster som vetter österut. Rummen har en gemensam dörr. Den platsbyggda garderoben var vid den här tiden ett relativt nytt påfund, tidigare hade man haft klädskåp.

Badrummet är utrustat med toalett, handfat och badkar i sintrat sanitetsporslin. Bakom handfat och badkar sitter 15 × 15 centimeter vitt glaserat kakel, i övrigt är väggarna är målade med oljefärg.

Källare

Talluddens källare inrymmer garage, pannrum, tvättstuga, torkrum, matkällare och svale.

Källarvåning Talludden

1950-talshuset

Vårt exempelhus Tjänstemannavillan från 1959 är ett exempel på en hustyp som blev vanlig vid slutet av 1950-talet. I jämförelse med tidigare egnahemshus från 40- och 50-talet är villan mer representativ till sin karaktär, tack vare en förskjutning i fasaden och en uppdelning mellan utrymmen för umgänge och vila. 

Läs mer om Tjänstemannavillan här

Villorna har vid den här tiden blivit något större än vad de flesta enfamiljshus var under 1940-talet och på tidigt 1950-tal. Tjänstemannavillan är uppförd i ett plan med källare och har 4 rum och kök på cirka 90 m². Alla rum nås från den stora hallen. 

Tjänstemannavillans bottenvåning

Bottenvåning

Från entrén kommer man in i en stor och luftig hall. Alla rum nås från hallen, vilket gör att den får en central plats i huset. Funktionerna i tjänstemannavillan är uppdelade, så att utrymmen för samvaro nås genom dörrar till vänster i hallen och den mer privata delen med sov- och badrum ligger rakt fram och till höger.

Direkt till vänster om entrén leder en glasad pardörr in till det stora vardagsrummet. Glasdörrar mellan hall och vardagsrum är vanligt på 1950-talet och även senare i rekordårens bebyggelse på 1960- och 1970-talen. En öppen spis är en av flera kvaliteter i vardagsrummet.  

Planeringen av köket i 1950-talets bostäder baseras på utredningar och studier som pågått ända sedan 1920-talet. Vid 1950-talets slut är det noga uträknat vilka köksinredningar som är mest lämpliga för en smidig arbetsgång och inredningen är framför allt utstuderad för att passa husmodern. Till exempel är standardhöjden 85 centimeter för arbetsbänkar och 90 centimeter för diskbänkar, beräknat utifrån kvinnornas medellängd. 

Tjänstemannavillans kök med gröna köksluckor

I köket finns det gott om förvaringsutrymmen i form av skåp och lådor. En rejäl diskbänk i rostfri plåt tillsammans med stora bänkskivor ger också bra med ytor för tillredning och annat köksarbete. Vid den här tiden har kylskåpet blivit standard, men är litet och inbyggt i ett av högskåpen i köket. 

Det första sovrummet är ett mindre barnsovrum, som ligger rakt fram i förhållande till entrén. Rummet är så gott som kvadratiskt och försett med en inbyggd garderob. Här finns ett tvåluftsfönster, som genom sin placering i linje med dörren också släpper in lite ljus till hallen när dörren är öppen.  

Det andra sovrummet är husets största sovrum, som används av föräldrarna. Här finns tre inbyggda garderober, varav två mindre. Fönstret är ett tvåluftsfönster.  

Det tredje sovrummet är husets minsta sovrum, som används som barnrum. Här finns ett tvåluftsfönster och en inbyggd garderob. 

I anslutning till de tre sovrummen ligger ett badrum, som liksom de andra rummen i villan nås från hallen. Badrummet är litet men rymmer ändå toalett, tvättställ och badkar. Toalettstol och tvättställ är tillverkade av sintrat blekt gult porslin, kranarna är i förnicklad mässing och toalettsitsen är av svart bakelit. Badkaret är emaljerat och inkaklat. 

En groventré med trapphall förbinder bostadsplanet med källarvåningen. Entrén ligger lite lägre än bostadsplanet, så dörren ut till trädgården når man via några trappsteg ner från köket och en längre trappa upp från källaren.

Källarvåning

Tjänstemannavillans källare nås via garageinfarten eller via en separat groventré, där en trappa förbinder källarvåningen med bostadsvåningen. 

Via källartrappan kommer man ner i en svale. Utrymmet används som hall och härifrån når man de flesta rummen i källaren. Närmast till höger finns tvättstugan, längre in finns pannrum, matkällare, mörkrum, ett större rum som kunde användas som bostadsrum och längst bort ett garage som nås via en sluss.  

Direkt till höger när man kommer ner från källartrappan ligger tvättstugan, i nära anslutning till både entréplan och trädgård. På så vis blir det smidigt att bära med och hänga ut tvätt. Tvättstugan är utrustad med tvättmaskin, tvättho och torklinor.  

På 1950-talet blir oljepannor mycket vanliga, för att under 1960-talet nära nog ta över helt. Ved- och kokspannor förekommer dock fortfarande på 1950-talet. Dessutom har det kommit kombinationspannor, där man kan elda med både olja och fast bränsle. Tjänstemannavillan värms upp med en panna avsedd för olja och koks.  

Matkällaren är mörk och försedd med en friskluftsventil. Den fyller en viktig funktion när det gäller förvaring av mat, eftersom kylskåpet är ganska litet och bara rymmer det nödvändigaste.

Intill garaget i källaren finns ett stort rum, som tack vare god tillgång på dagsljus kan användas som ytterligare ett bostadsrum i tjänstemannavillan. Eftersom det är utgrävt för en nedfart till garaget finns här plats för ett fönster av samma mått och utförande som fönstren i bostadsvåningen. 

Här finns också en möjlighet att hyra ut ett rum, något som är vanligt på 1950-talet då många anser att de inte behöver använda alla rum själva. En annan möjlighet är att använda rummet för att bedriva någon slags näringsverksamhet. 

Ett litet utrymme mellan det stora rummet och garaget gör det möjligt att passera utan att dra in smuts, lukt och kyla i bostadsrummet och de övriga källarutrymmena. 

På 1950-talet börjar bilen ta allt större plats i samhället och fler kan förverkliga drömmen om att skaffa en egen bil. Garage börjar därför bli standard vid nybyggnationer av småhus och villor. I tjänstemannavillan, som är en något exklusivare villa, har garaget en given plats.  

Det moderna huset på gjuten platta

Exempelhuset Gulmåra är ett av flera kataloghus i Fogelfors Flora-serie. Det här huset levereras 1967 som en monteringsfärdig byggsats från AB Fogelfors Bruk.

Läs mer om Gulmåra här

Gulmåra har en bostadsyta på 119,5 m² med fem rum och kök. Biutrymmen och ett extra sovrum i entréplan gör dock att huset känns större än vad det är.

Entréplan

Eftersom Gulmåra är ett hus med suterrängvåning så ligger den bakre delen av entréplanet till största delen under mark, medan den främre delen är helt frilagd. Entréplanet i huset fungerar därför både som bostadsvåning och källare. 

Bottenvåningen i Gulmåra

Rummen på den främre sidan av huset har fönster av samma format som på övervåningen och kan användas som bostadsrum. På entréplanets baksida finns bara plats för källarfönster och den här delen av våningsplanet har därför källarkaraktär, med utrymmen som pannrum, matkällare och tvättstuga. 

Den sida av huset som har ett frilagt suterrängplan fungerar som husets framsida. Huvudentrén är placerad något till vänster på framsidan och får skydd under balkongen på den övre våningen. Rakt fram i hallen finns en nisch med plats för garderober och hatthylla. 

Till höger om entrén finns ett sovrum, som till exempel kan användas som gästrum eller ett extra sovrum. Här finns plats för två sängar. Intill rummet finns en wc och en klädkammare. I anslutning till entrén finns en liten WC som rymmer tvättställ och toalett.  

1960-talet var oljepannornas storhetstid. De allra flesta husen värmdes vid den här tiden upp med oljepanna och det gällde även i detta hus. I pannrummet finns ett högt placerat ljusinsläpp av glasbetong, ett material som blev väldigt populärt på 1950- och 60-talen. Här sitter fem block i rad.

I husets suterrängvåning finns ett inbyggt garage som nås från framsidan.

I matkällaren sitter tre stycken 50 cm breda hyllor i höjd. Här finns plats för förvaring av mat, som komplement till skafferiet och kylskåpet i köket.

På planritningen finns också utritat en plats för frys i nedre hallen, precis utanför matkällaren. På 1960-talet blev frysen standard i varje villa, något som inte alls hade varit en självklarhet tidigare.

I tvättstugan finns plats för tvättmaskin, tvättställ och förvaringsutrymmen. Vid den här tiden har den helautomatiska tvättmaskinen blivit vanlig. Tvätten hängs i ett särskilt torkrum. Det har också börjat komma torktumlare på marknaden.  

Det här rummet är speciellt avsett för att hänga tvätt i. Här finns ett lite bredare källarfönster med två fönsterlufter, som släpper in mer ljus och förbättrar möjligheterna till vädring. 

Till det här rummet finns en egen entré på husets ena gavel. Enligt planritningen är rummet avsett att fungera som förråd, men eftersom det är ett stort rum och har bra dagsljusbelysning så kan det mycket väl användas som till exempel arbetsrum eller hobbyrum.  

Övervåning

Eftersom detta är ett suterränghus finns största delen av bostaden på den övre våningen. Bostadsytan är 119,5 m².

Gulmåras övervåning

Den övre hallen är delad i en yttre och en inre del. När man kommer upp från trappan möts man av en välkomnande liten hall, med dörrar till kök och vardagsrum. Till höger om trappan leder en smalare korridor till den mer privata delen av bostaden, med badrum och tre sovrum. Avskilda sovrumskorridorer är vanligt i 1960-talets villor. 

Vardagsrummet är stort och rymligt med plats för både soffgrupp och matplats. Eftersom rummet är genomgående, med fönster åt två väderstreck, blir det också mycket ljust. 

Köket i villan är ett så kallat parallellkök, med arbetsytor och skåp på två varandra motstående sidor. Här finns bra ytor för köksarbete med en stor rostfri diskbänk och bänkskivor belagda med teakmönstrat plastlaminat. 

Badrummet i det här huset är ganska stort. Här finns plats för toalett, bidé, tvättställ och badkar. Bidén blev väldigt vanlig på 1960-talet. Framför det stora fönstret mot husets baksida finns också plats för ett sminkbord eller liknande. 
 
Sanitetsporslinet i badrummet är ljusgult, en vanlig färgställning på 1960-talets badrumsinredningar. 

Det första sovrummet är tänkt att användas som barnsovrum, med plats för två sängar. Mot husets baksida sitter ett större och ett mindre fönster intill varandra. I rummet finns två inbyggda garderober. 

Det minsta sovrummet är ett barnsovrum med plats för en säng. I rummet finns två garderober. Med undantag av badrummet så är det här det enda rummet i övervåningen där det bara finns ett fönster. Detta vetter mot husets framsida. 

Husets största sovrum är tänkt att användas som föräldrasovrum. Här finns tre inbyggda garderober.

 

 


Senast uppdaterad: 2020-04-03 09:01